PROPERTY土地・建物情報

2026/04/30
吉備中央町 中古住宅

備高原 上竹の天神社(神社)横 コンビニに近いの物件 お住まい・店舗としてご検討ください!

550万円(税込)
販売中

外観

内観

販売対象物件固定資産地籍図

パノラマ写真

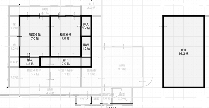
間取り

1階面積 82.64㎡
2階面積 28.92㎡
延床面積 6DK 合計111.56㎡(約33.7坪)
土地面積 449.40㎡(約135.94坪)

物件概要

所在地 加賀郡吉備中央町上竹1207-7
価格 550万円(税込)
交通 備北バス 天神下バス停 徒歩2分 130m
校区 加賀西小学校(旧豊野小学校) 距離3,100m / 加賀中学校 距離 7,100m
接道 南 幅3.5m 公道 接面3.5m 舗装有
土地面積 449.40㎡(約135.94坪)
内私道負担面積
地目 宅地 / 雑種地
建物面積 111.56㎡ 
建ぺい率
容積率
土地の権利形態 所有権
構造・工法 木造瓦葺2階建
駐車場 3台以上
上水道 公共
下水道 汲み取り式
電気
ガス プロパン
用途地域
都市計画 都市計画区域外
建築確認番号

特記事項

・本物件は現況にてお渡しします。

・上記建物の表示は母屋の面積を表示しています。

 ご契約後、決済お引渡し日までに売主様のご負担にて現況に合わせて増築および未登記建物(付属家 54.32㎡ 固定資産公課証明記載面積)の登記を行いお引渡しします。

・本物件土地と併せて南側駐車場 地番1206-1 281㎡および東側空き地 地番1207-2 242㎡ 地目「田」をお渡しします。

 地目田2筆は転用許可済みの物件で現在地目を宅地または雑種地に変更手続き中です。

 駐車場・家庭菜園などのご利用をご検討ください。

・本物件は天神社(神社)の西側に位置する物件です。 ご購入後、神社の行事、地域の行事等に積極的にご参加お願いします。

・本物件には乗用車5台程度駐車できるスペースがあります。 お住まいはもとより店舗等のご利用などご検討ください。

・本物件のトイレは簡易水洗(汲み取り式)と母屋東に現在使用していないトイレがあります。 合併浄化槽の設置をご検討ください。

吉備中央町のリフォーム・浄化槽などの補助金は下記をクリックいただき弊社ホームページコラムでご確認ください。

 令和8年度 吉備高原 吉備中央町の利用したい補助金|アイ・スマイル不動産株式会社

 弊社の参加するSmileパートナーズの司法書士・土地家屋調査士、行政書士・税理士などの士業の皆様と大工・デザイナー・カメラマン・インタビュライターなどの専門業者のメンバーが地元の建築・上下水道・ハウスクリーニング業者様と協力して吉備高原に移住をお考えの皆様をできるだけワンストップで応援させていただきます。

お声かけお待ちしています。

取引形態 一般媒介
完成時期 1955年(昭和30年)
入居可能時期 随時
問い合わせ先

アイ・スマイル不動産株式会社    電話 0866-56-6050
岡山県加賀郡吉備中央町吉川4860-6 きびプラザ2階
免許番号:岡山県知事免許(1)第6154
所属協会:(公社) 全日本不動産協会岡山県本部
     (一社)岡山県不動産協会 中国地区不動産公正取引協議会
不動産担当 岩﨑 武   携帯 090-7500-9214

情報公開日 2026/04/30
次回の更新予定日 令和8年8月31日