PROPERTY土地・建物情報

2025/11/30
吉備中央町 中古住宅

吉備高原 上田東 高台のかや葺の古民家 畑・山林他付 農家住まい・隠れ家レストランなどにいかがですか?

350万円(税込)
販売中

外観

内観

眺望 パノラマ写真

販売対象物件位置表示 固定資産地籍図

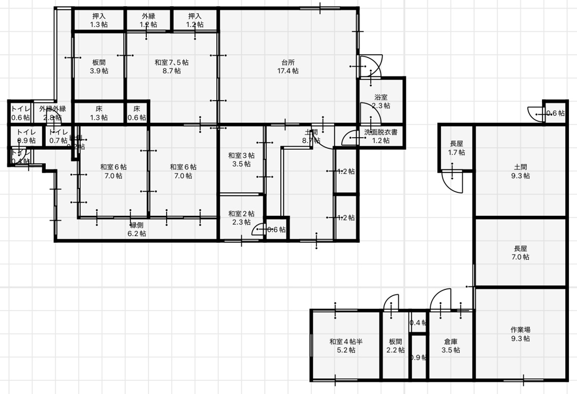
間取り

1階面積 129.32㎡  6DK
2階面積
延床面積 129.32㎡
土地面積 448.23㎡(約135.5坪)

物件概要

所在地 加賀郡吉備中央町上田東352-2
価格 350万円(税込)
交通 中鉄バス 円城バス停 徒歩23分 1800m
校区 加賀東小学校(旧円城小学校) 900m / 加賀中学校 9,700m
接道 南 幅3m 接面27m 舗装有
土地面積 448.23㎡(約135.5坪)
内私道負担面積
地目 宅地
建物面積 129.32㎡(約39.1坪)
建ぺい率
容積率
土地の権利形態
構造・工法 木造
駐車場 2台以上あり
上水道 公共
下水道 汲み取り式
電気
ガス
用途地域
都市計画 都市計画区域外
建築確認番号

特記事項

・本物件は築128年超の古民家です。 床、母屋の台所付近の雨漏りなど修繕を要する箇所があります。

 台所付近の雨漏りについては、決済お引渡し日までに売主様の負担により屋根の雨漏り部分の補修を行いお引渡しします。

 その他の修繕は行わず現況にてお渡しします。

・表示の建物面積は登記上の面積です。 固定資産税公課証明上の面積は133.88㎡です。

・建物の登記が現況と相違している部分があり未登記建物もあります。 売買契約締結後決済引渡し日までに売主様の負担により測量を行い現況に合わせて登記を行いお引渡しします。

・本物件にあわせて宅地1筆135.08㎡、原野3筆451㎡、畑5筆4,673㎡、山林5筆 5,000㎡、墓地1筆29㎡、附属建物1 物置 公簿61.81㎡(公課証明64.92㎡)及び建物3棟69.57㎡をお渡しします。

・畑を併せてお渡しするためご購入いただける方が継続して畑を耕作いただけ農地法の許可が受けられる方に限定されます。

・本物件は現在残置物の片付け中です。 内見時はお含みおきください。

農家住宅・各種店舗などご検討ください!

 弊社の参加するSmileパートナーズの司法書士・土地家屋調査士・行政書士・税理士・社会保険労務士などの士業の皆様と大工・カメラマン・デザイナー・インタビュライターなどの専門の業者の皆様が地元の建築・上下水道業者の皆様と協力して、吉備高原に移住・住み替え・店舗などの開業をお考えの皆様を応援します。

お気軽にお声掛けください!

取引形態 一般媒介
完成時期 1897年(明治30年)
入居可能時期 ご相談
問い合わせ先

アイ・スマイル不動産株式会社    電話 0866-56-6050
岡山県加賀郡吉備中央町吉川4860-6 きびプラザ2階
免許番号:岡山県知事免許(1)第6154
所属協会:(公社) 全日本不動産協会岡山県本部
     (一社)岡山県不動産協会 中国地区不動産公正取引協議会
不動産担当 岩﨑 武   携帯 090-7500-9214

情報公開日 2025/11/30
次回の更新予定日 令和8年1月31日