PROPERTY土地・建物情報

2026/02/13
吉備中央町 中古住宅

吉備高原 上竹の高台 オレンジ色の屋根が青空に映える物件 田畑山林付き

600万円(税込)
販売中

外観

内観

眺望 パノラマ写真

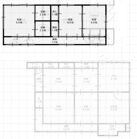
間取り

1階面積 106.42㎡
2階面積 29.07㎡
延床面積 135.49㎡
土地面積 678.44㎡(約205.22㎡)

物件概要

所在地 加賀郡吉備中央町上竹1615-2
価格 600万円(税込)
交通 備北バス 天神下バス停 徒歩5分 400m
校区 加賀西小学校(旧豊野小学校) 距離2,800m / 加賀中学校 距離6,900m
接道 東 幅3.4m 公道 接面3.5m 舗装有
土地面積 678.44㎡(約205.22㎡)
内私道負担面積
地目 宅地
建物面積 135.49㎡
建ぺい率
容積率
土地の権利形態 所有権
構造・工法 木造瓦葺2階建(固定資産税公課証明記載面積)
駐車場 駐車場3台以上
上水道 公共
下水道 汲み取り式
電気
ガス
用途地域
都市計画 都市計画区域外
建築確認番号

特記事項

・本物件は現況にてお渡しいたします。

・建物の登記が現況と相違するためご契約後決済お引渡し日までに測量を行い登記変更後お引渡しします。 そのためお引渡しに時間を要する場合があります。

 表示の建物面積は母屋の固定資産税公課証明記載の面積を表示しています。

・本物件と併せて建物2棟 長屋2階建 184.16㎡、車庫・倉庫 1階建62.32㎡(固定資産税公課証明記載面積)及び、田 9筆 13,089㎡、畑 4筆 2,645㎡、山林 16筆 20,612㎡、保安林 2筆 3,029㎡、公衆用道路 1筆 120㎡を併せてお渡しします。

・本物件に加えて農地をお渡しするためご購入いただける方が農地を継続的に耕作いただけ、農地法の許可が受けられる方に限定されます。

 尚、農地法の許可を受けるための費用は買主様のご負担となります。

・本物件のトイレは汲み取り式です。 買主様のご負担となりますが合併浄化槽の設置をご検討ください。

本物件は高台の物件で農業を行いながらの田舎暮らしをお考えの方にお勧めします!

 

 吉備高原に移住をお考えの皆様を弊社の参加するSmileパートナーズの司法書士・行政書士他と力をあわせて応援しています!

取引形態 一般媒介
完成時期 1916年(大正5年)
入居可能時期 ご相談
問い合わせ先

アイ・スマイル不動産株式会社    電話 0866-56-6050
岡山県加賀郡吉備中央町吉川4860-6 きびプラザ2階
免許番号:岡山県知事免許(1)第6154
所属協会:(公社) 全日本不動産協会岡山県本部
     (一社)岡山県不動産協会 中国地区不動産公正取引協議会
不動産担当 岩﨑 武   携帯 090-7500-9214

情報公開日 2026/02/13
次回の更新予定日 令和8年3月31日