PROPERTY土地・建物情報

2026/03/16
吉備中央町 中古住宅

吉備高原 小森 高台のかやぶき(トタン巻き) 薪ストーブと薪と灯油併用焚き風呂のある古民家 農地山林付き

270万円(税込)
販売中

外観

内観

眺望 パノラマ写真

物件位置表示 簡易作成 固定資産地籍図

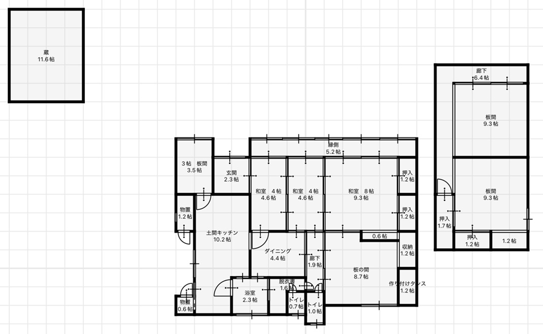
間取り

1階面積 118.4㎡ 4DK
2階面積
延床面積 118.4㎡
土地面積 518.35㎡(約156.8坪)

物件概要

所在地 加賀郡吉備中央町小森635
価格 270万円(税込)
交通 中鉄バス 小森集会所バス停 徒歩11分 850m
校区 加賀東小学校(旧円城小学校) 距離4,800m / 加賀中学校 距離10,900m
接道 西 幅3m 公道 接面3.6m 舗装有
土地面積 518.35㎡(約156.8坪)
内私道負担面積
地目 宅地
建物面積 118.4㎡(約35.8坪)母屋のみを表示
建ぺい率
容積率
土地の権利形態 所有権
構造・工法 木造
駐車場 2台以上駐車可能
上水道 山水(修繕を要します)
下水道 汲み取り式
電気
ガス
用途地域
都市計画 都市計画区域外
建築確認番号

特記事項

・本物件は現況にてお渡しします。

・表示の建物面積は母屋のみの面積です。 建物登記が現況と相違するため固定資産税公課証明記載の面積を表示しています。

 ご契約後、決済お引渡し日までに売主様のご負担にて建物の測量を行い登記後お引渡しします。

・本物件に加えて建物4棟139.88㎡、宅地1筆96.02㎡、雑種地1筆212㎡、原野1筆13㎡、田11筆7,321㎡、畑6筆1,734㎡、山林30筆64,221㎡、保安林4筆9,023㎡、墓地1筆132㎡をお渡しします。

・農地をあわせてお渡しするためご購入いただける方が農地を引き続き耕作いただけ農地法の許可が受けられる方に限定されます。 尚、農地法の申請費用は買主様のご負担となります。

・本物件は過去山水を利用していましたが現状使用できず修繕を要します。

 公共水道は西側道路に配管がありますが本物件への引き込みはございません。 買主様のご負担で公共水道を居宅付近まで引き込み頂く場合、別途約50万円程度ご負担頂くこととなります。

・過去被害はございませんが居宅東側一部が土石流警戒区域に該当します。

 弊社の参加するSmileパートナーズの司法書士・土地家屋調査士・行政書士など士業の皆様と大工・デザイナーなどの専門の業者が、地元の建築・土木・上下水道・プロパンガスなどの業者様と協力して吉備高原への移住をお考えの皆様をできるだけワンストップで応援しています。(Smileパートナーズについては弊社HPコラムをご覧ください)

Smileパートナーズがチームとして吉備高原にお住まいをお考えの皆様を応援します!|アイ・スマイル不動産株式会社

令和7年度 吉備高原 吉備中央町の利用したい補助金|アイ・スマイル不動産株式会社

 内見とお声掛けをお待ちしています。 

取引形態 一般媒介
完成時期 1899年(明治32年)
入居可能時期 ご相談
問い合わせ先

アイ・スマイル不動産株式会社    電話 0866-56-6050
岡山県加賀郡吉備中央町吉川4860-6 きびプラザ2階
免許番号:岡山県知事免許(1)第6154
所属協会:(公社) 全日本不動産協会岡山県本部
     (一社)岡山県不動産協会 中国地区不動産公正取引協議会
不動産担当 岩﨑 武   携帯 090-7500-9214

情報公開日 2026/03/16
次回の更新予定日 令和8年5月31日