PROPERTY土地・建物情報

2025/09/27
吉備中央町 中古住宅

吉備高原 尾原 標高260m超 山々を見渡せ 乗用車が10台程度駐車可能な駐車場有り オール電化で井戸水も使用できる公共下水の物件

1500万円(税込)
販売中

外観

内観

眺望

パノラマ写真

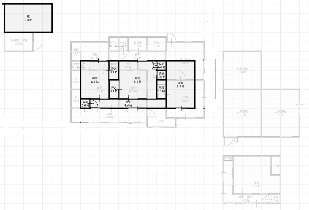
間取り

1階面積 116.14㎡
2階面積 58.27㎡
延床面積 174.41㎡
土地面積 818.96㎡(約247坪)

物件概要

所在地 加賀郡吉備中央町尾原2045
価格 1500万円(税込)
交通 中鉄バス 尾原中橋バス停 徒歩15分 1200m
校区 加賀東小学校(旧円城小学校) 距離11,400m / 加賀中学校 距離10,200m
接道 南 幅4m 公道 接面3m 舗装有
土地面積 818.96㎡(約247坪)
内私道負担面積
地目 宅地
建物面積 174.41㎡
建ぺい率
容積率
土地の権利形態 所有権
構造・工法 木造かわらぶき2階建
駐車場 10台程度駐車可能
上水道 公共
下水道 公共
電気
ガス
用途地域
都市計画 都市計画区域外
建築確認番号

特記事項

・本物件は現況にてお渡しします。

・母屋の下に乗用車10台程度駐車可能な駐車場があります。 公共水道に併せて井戸水が引かれた外部水栓があり、公共下水 オール電化の物件です。

 農家住宅はもとより民泊や隠れ家レストラン等幅広い用途としてご検討ください。

・本物件の表示の土地面積は居宅の敷地部分の面積を表示し、建物は母屋の面積を表示しています。

 本物件に併せて建物 平家建 73.85㎡、蔵 2階建 48.96㎡、宅地 3筆 234.87㎡、雑種地 2筆 554㎡、原野 3筆 643㎡、田 12筆 9,075㎡、畑 7筆 5,016㎡、山林 36筆 75,034㎡、池沼、墓地、保安林 4筆 4,075㎡をお渡しします。

・田畑を併せてお渡しするためご購入いただける方が農地を継続して耕作いただけ農地法の許可が受けられる方に限定されます。 尚、農地法の申請費用は買主様のご負担となります。

 弊社の参加するSmileパートナーズの司法書士・税理士などの士業の皆様、大工、地元の建築・上下水道業者の皆様が力をあわせて移住をお考えの皆様を応援しています!

取引形態 一般媒介
完成時期 1988年(昭和63年)
入居可能時期 ご相談
問い合わせ先

アイ・スマイル不動産株式会社    電話 0866-56-6050
岡山県加賀郡吉備中央町吉川4860-6 きびプラザ2階
免許番号:岡山県知事免許(1)第6154
所属協会:(公社) 全日本不動産協会岡山県本部
     (一社)岡山県不動産協会 中国地区不動産公正取引協議会
不動産担当 岩﨑 武   携帯 090-7500-9214

情報公開日 2025/09/27
次回の更新予定日 令和7年11月30日