PROPERTY土地・建物情報

2026/04/08
吉備中央町 中古住宅

吉備高原住区 北住区 自然型の高台 セキスイハイムの中古物件

2800万円(税込)
販売中

外観

内観

2階よりの眺望 パノラマ写真

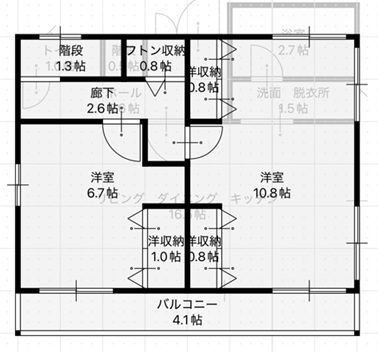
間取り

1階面積 42.16㎡
2階面積 40.50㎡
延床面積 2LDK 82.66㎡(約25坪) 
土地面積 561.16㎡(約169.7坪)

物件概要

所在地 加賀郡吉備中央町上野2280-8
価格 2800万円(税込)
交通 中鉄バス 北部住区上バス停 徒歩4分 300m
校区 加賀南小学校(旧吉備高原小学校) 1,000m / 加賀中学校 5,500m
接道 北 幅6m 公道 接面16.5m 舗装有
土地面積 561.16㎡(約169.7坪)
内私道負担面積
地目 宅地
建物面積 82.66㎡
建ぺい率 40%
容積率 80%
土地の権利形態 所有権
構造・工法 軽量鉄骨造亜鉛メッキ鋼板葺2階建
駐車場 2台以上
上水道 公共
下水道 公共
電気
ガス
用途地域 第1種低層住居専用地域
都市計画 非線引き区域
建築確認番号

特記事項

・本物件は決済お引渡し時の現況にてお渡しします。

・本物件の内見のご希望がございましたら事前のご予約をお願いします。

 ご予約いただいたお客様をご予約順に日程調整させて頂きご案内させていただきます。

・吉備高原北住区 自然型の高台の物件で、セキスイハイムにより建築された物件です。

・建築後7年程度お住いの後別荘として利用されていました。

・開放感のある天窓付きのお風呂があります。

・間取り図は簡易に作成したものです、詳しくは内見時にご確認ください。

・お引渡しは夏休み明けの令和8年9月以降を予定しています。

 吉備高原住区の高台の物件をお探しの皆様のご検討をお待ちしています。

 弊社の参加するSmileパートナーズの司法書士・土地家屋調査士・税理士・行政書士などの士業の皆様と大工・カメラマン・デザイナーなどの専門の業者の皆様が、地元の建築・上下水道・片付け・ハウスクリーニング業者の皆様と協力して吉備高原に移住をお考えの皆様のお手伝いをさせて頂いています。

お気軽にお声掛けください!

取引形態 一般媒介
完成時期 平成7年(1995年)1月27日新築
入居可能時期 令和8年9月以降
問い合わせ先

アイ・スマイル不動産株式会社    電話 0866-56-6050
岡山県加賀郡吉備中央町吉川4860-6 きびプラザ2階
免許番号:岡山県知事免許(1)第6154
所属協会:(公社) 全日本不動産協会岡山県本部
     (一社)岡山県不動産協会 中国地区不動産公正取引協議会
不動産担当 岩﨑 武   携帯 090-7500-9214

情報公開日 2026/04/08
次回の更新予定日 令和8年7月31日